Skip to main content

Villa, Hamburg

Objektdaten

Bauvorhaben: Neubau Villa im klassischen Stil mit Anbau, Hamburg

Entwurfsplanung:
Dipl.-Ing. Architekt Jörg Schreckenberg, An der Untertrave 67, 23552 Lübeck

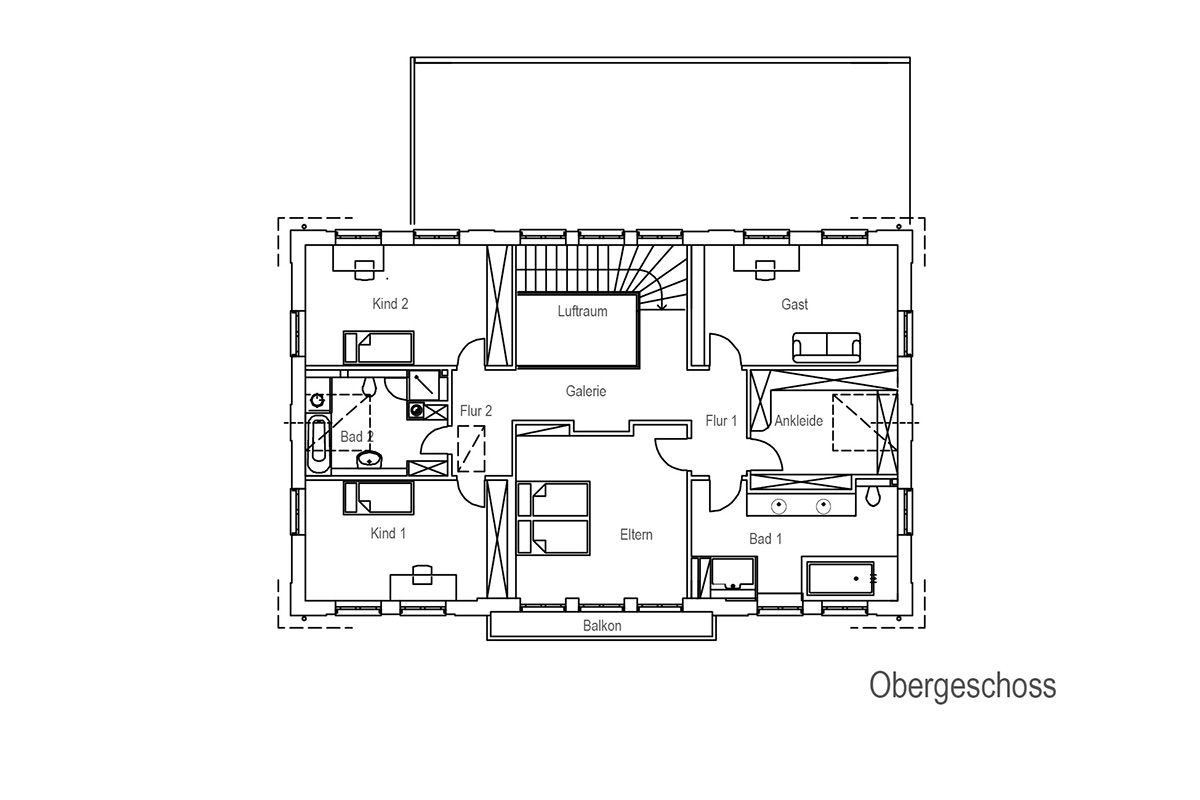
Neubau Villa:

  • Grundstück rund 2250 m2, mit schönem alten Baumbestand
  • Villa / Einfamilienhaus (2-geschossig), mit Keller und Anbau (Garage)
  • Wohnflächen: Erdgeschoss und Obergeschoss je 135 m2
  • Massive Bauweise: Außenwanddicken 35 cm bzw. 40 cm, Plansteine aus Porenbeton in unterschiedlichen Dicken miteinander kombiniert (Dicken: 15 cm + 20 cm / 20 cm + 20 cm / 30 cm + 10 cm), um mit einem Baustoff eine profilierte Fassade mit Lisenen und Fensterumrahmungen zu schaffen und gleichzeitig glatte Wände im Innenraum zu erhalten, Innenwände 11,5 cm und 17,5 cm Porenbeton
  • Zusätzliche Nutzflächen: Keller 135 m2 und Anbau (Garage) 40 m2, Außenwände 36,5 cm Porenbeton, Innenwände 17,5 cm Porenbeton (im Keller teilweise 24,0 cm Kalksandstein)

Bauzeit: 8 Monate

Bezug:
2008

Diese Website verwendet ausschließlich Cookies zur Analyse der Seitennutzung. Mit dem Besuch unserer Website erklären Sie sich mit der Speicherung dieser Cookies einverstanden. Hinweise zur Deaktivierung von Cookies finden Sie in unserer Datenschutzerklärung.